Casa indipendente in vendita

Forlì, Via Monte Colombara - Ospedaletto
€ 229.000
3 locali 3 locali
212 Mq 212 Mq
2 bagni 2 bagni

Casa indipendente in vendita

Forlì, Via Monte Colombara - Ospedaletto

Descrizione annuncio

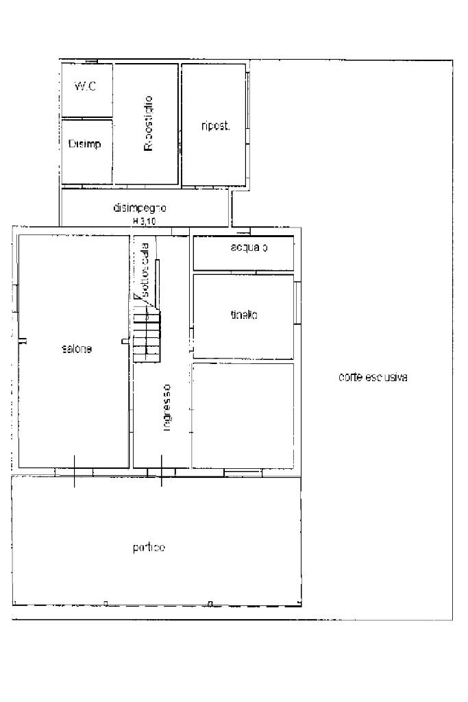
FORLI' - PIANTA

Nel tranquillo contesto del quartiere Pianta, nel comune di Forlì, è disponibile per la vendita una porzione di bifamiliare.

L'immobile si sviluppa su più livelli e offre spazi ben distribuiti.

Al piano terra troviamo:

soggiorno ampio e luminoso, perfetto per momenti di relax o accoglienza, una sala da pranzo dedicata e una cucina separata, ideale per chi desidera mantenere gli spazi distinti e organizzati.

La zona giorno è completata da un bagno con antibagno, pratico e funzionale, e da due ripostigli versatili, ottimi come dispensa, lavanderia o piccola area hobby

Mentre al primo piano:

due camere da letto e bagno, garantendo comfort e funzionalità.

La proprietà è dotata di un sistema di allarme per una maggiore sicurezza.

All'esterno, un ampio giardino circonda l'abitazione, offrendo uno spazio ideale per il relax all'aria aperta.

Completano la proprietà due posti auto, che assicurano comodità e praticità. Questa casa rappresenta un'opportunità interessante per chi cerca una soluzione abitativa in una zona tranquilla, ma ben collegata ai servizi della città di Forlì.

Per maggiori informazioni o per organizzare una visita, contattaci!

VAI ALLA SEZIONE ^MAPPE SENSIBILI^, CLICCANDO SULLE MACCHINE FOTOGRAFICHE POTRAI VISUALIZZARE LE FOTO E LA DISPOSIZIONE DEGLI AMBIENTI. Per qualsiasi informazione o per fissare un appuntamento chiama: 0543 030154 oppure manda un'email a foca8

Mostra tutto

Nelle vicinanze

Trasporto pubblico Trasporto pubblico
stazione di Forlì
stazione di Forlì
1,2 Km
Trasporto pubblico
480 m
Forli Fs
Forli Fs
1,3 Km
Ricariche auto elettriche Ricariche auto elettriche
Eneldrive Stazione FS
1,3 Km
Eneldrive Mazzini
1,5 Km
Eneldrive Palazzo Di Giustizia
1,7 Km
Eneldrive Campus di Forlì
2,0 Km
Eneldrive San Domenico
2,1 Km
Scuole Scuole
Scuola Elementare "Alessandro Manzoni"
890 m
Scuola Elementare "Bersani"
1,1 Km
Scuole
1,4 Km
Accademia InArte
1,4 Km
Istituto tecnico "G. Saffi"
1,6 Km
Farmacia Farmacia
Farmacia
740 m
Farmacia San Domenico
1,1 Km
Farmacia comunale "Piazza delle Erbe"
1,5 Km
Farmacia Comunale
1,7 Km
Farmacia Malpezzi
1,7 Km
Ospedali Ospedali
Ospedale Privato "Primus", gruppo Villa Maria
1,9 Km
Ospedali Privati Forlì "Villa Igea"
2,0 Km
Ospedali Privati Forlì "Villa Serena"
2,6 Km
Supermercati Supermercati
Conad
470 m
Birrino - birra vino cibo
660 m
Lidl
1,2 Km
Aldi
1,2 Km
Ipercoop "I Portici"
1,2 Km
Negozi Negozi
Break Point
1,2 Km
Gimelli (Mountain shop)
1,3 Km
Wendy Market
1,4 Km
Bangla Market
1,5 Km
Scarmilê
1,5 Km
Bar Bar
Vecchia Stazione
1,1 Km
Bar
1,3 Km
Boulevard
1,3 Km
Baracca cafè
1,5 Km
Bar Mercato Coperto
1,6 Km
Ristoranti Ristoranti
Pizzeria ristorante Da gusto
740 m
Osteria L'amorosa
820 m
Ciccio Pizza
1,2 Km
Sakura
1,2 Km
Jungle
1,2 Km
Mostra tutto

Caratteristiche

Rif.:
61142476
Piano:
1 di 1 (Piano su più livelli)
Posti auto:
2
Camere da letto:
2
Arredamento:
Parziale
Condizionamento:
Assente
Mostra tutto
Prezzo Prezzo
€ 229.000
Rata mutuo Rata mutuo
€ 1.081 / mese
Spese annue Spese annue
€ 0
Proponi il tuo prezzoProponi il tuo prezzo

Classe Energetica

Questo immobile è esente da classe energetica
Anno di costruzione:
1970
Riscaldamento:
Autonomo
Tipo impianto:
A radiatori
Tipo alimentazione:
Metano

Ti interessa visionare l'immobile?

Fissa un appuntamento  Fissa un appuntamento

Richiedi informazioni

Clicca su Leggi per aprire l'informativa
* Questi campi sono obbligatori

Calcola il tuo mutuo

Semplice e senza impegno
Anticipo

( % )
Mutuo

( % )

pochi semplici passi

inserisci i tuoi dati
Questionario completato
Grazie per aver richiesto un appuntamento senza impegno con un nostro Consulente del Credito e Assicurativo.

Hai inserito correttamente tutti i dati necessari e a breve riceverai una e-mail con un link da convalidare per inviare i tuoi dati.
Affiliato
Immobiliare Cinque Srl
Via Eugenio Bertini, 199 47122 Forlì (FC)

Il nostro staff


  • Antony D'Angelo
    Collaboratore

  • Carmela Formisano
    Coordinatrice

  • Gaia Gelsomini
    Collaboratrice

  • Matteo Mambelli
    Responsabile

  • Michele Vescio
    Affiliato
Via Eugenio Bertini, 199 47122 Forlì (FC)
Zona: Forlì Ospedaletto-Coriano-Pieve Acquedotto-San Giorgio
Mostra su mappa
Orari: Lun-Ven: 9.00 - 13.00; 15.30 - 19.30 Sab: 9.00 - 13.00
Affiliato
Immobiliare Cinque Srl
Via Eugenio Bertini, 199 47122 Forlì (FC)

2025 Tecnocasa Franchising S.p.A. - P. IVA 08365160152 - Via Monte Bianco 60/A 20089 Rozzano (MI). Ogni agenzia ha un proprio titolare ed è autonoma. Privacy policy | Policy utilizzo | Cookie policy