Casa indipendente in vendita

Forlì, Via Lughese - Villafranca Di Forlì
€ 390.000
8 locali 8 locali
1186 Mq 1186 Mq
4 bagni 4 bagni

Casa indipendente in vendita

Forlì, Via Lughese - Villafranca Di Forlì

Descrizione annuncio

FORLI' - VILLAFRANCA.

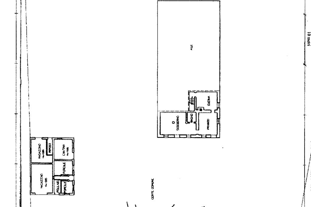
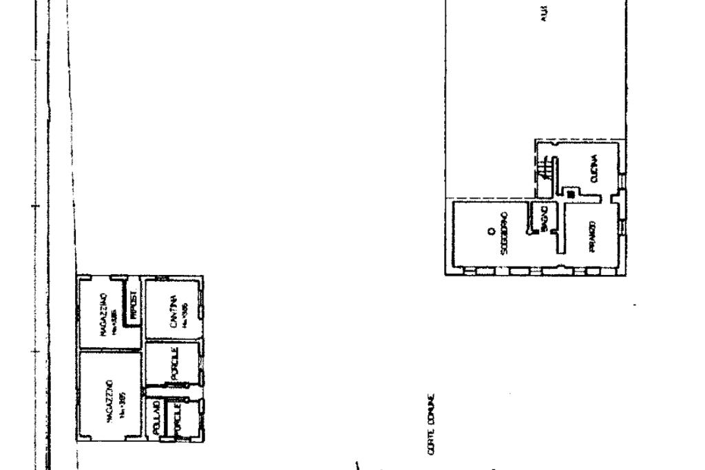
Proponiamo ampia villa da ristrutturare, ideale per ricavare fino a tre unità abitative.

La prima soluzione comprende 3 camere, soggiorno, sala da pranzo, cucina e bagno.
La seconda si sviluppa con sala da pranzo, cucina e 4 camere versatili al piano terra; al piano superiore 3 camere principali e 4 ulteriori stanze polifunzionali.
Presente inoltre un sottotetto sfruttabile.

Completano la proprietà un locale di culto e un giardino privato.

Ottima opportunità per investimento o progetto plurifamiliare.

Per maggiori informazioni o per organizzare una visita, contattaci!

VAI ALLA SEZIONE ^MAPPE SENSIBILI^, CLICCANDO SULLE MACCHINE FOTOGRAFICHE POTRAI VISUALIZZARE LE FOTO E LA DISPOSIZIONE DEGLI AMBIENTI. Per qualsiasi informazione o per fissare un appuntamento chiama: 0543 030154 oppure manda un'email a foca8

Mostra tutto

Nelle vicinanze

Scuole Scuole
Scuola Francesco Baracca
10 m
Scuole
2,7 Km
Farmacia Farmacia
Farmacia Villafranca
2,7 Km
Supermercati Supermercati
Supermercati
410 m
Conad
2,6 Km
Negozi Negozi
Golfera
460 m
Negozi
2,4 Km
Bar Bar
Circolo e Tabacchi
2,5 Km
Ristoranti Ristoranti
T'Imballo
2,5 Km
Mostra tutto

Caratteristiche

Rif.:
61182840
Piano:
2 di 3 (Piano su più livelli)
Box:
2
Posti auto:
8
Balconi:
1
Camere da letto:
8
Mostra tutto
Prezzo Prezzo
€ 390.000
Rata mutuo Rata mutuo
€ 1.838 / mese
Spese annue Spese annue
€ 0
Proponi il tuo prezzoProponi il tuo prezzo

Classe Energetica

Questo immobile è esente da classe energetica
Anno di costruzione:
1960
Riscaldamento:
Autonomo
Tipo impianto:
A radiatori
Tipo alimentazione:
Metano

Ti interessa visionare l'immobile?

Fissa un appuntamento  Fissa un appuntamento

Richiedi informazioni

Clicca su Leggi per aprire l'informativa
* Questi campi sono obbligatori

Calcola il tuo mutuo

Semplice e senza impegno
Anticipo

( % )
Mutuo

( % )

pochi semplici passi

inserisci i tuoi dati
Questionario completato
Grazie per aver richiesto un appuntamento senza impegno con un nostro Consulente del Credito e Assicurativo.

Hai inserito correttamente tutti i dati necessari e a breve riceverai una e-mail con un link da convalidare per inviare i tuoi dati.
Affiliato
Immobiliare Cinque Srl
Via Eugenio Bertini, 199 47122 Forlì (FC)

Il nostro staff


  • Antony D'Angelo
    Collaboratore

  • Carmela Formisano
    Coordinatrice

  • Gaia Gelsomini
    Collaboratrice

  • Matteo Mambelli
    Responsabile

  • Michele Vescio
    Affiliato
Via Eugenio Bertini, 199 47122 Forlì (FC)
Zona: Forlì Ospedaletto-Coriano-Pieve Acquedotto-San Giorgio
Mostra su mappa
Orari: Lun-Ven: 9.00 - 13.00; 15.30 - 19.30 Sab: 9.00 - 13.00
Affiliato
Immobiliare Cinque Srl
Via Eugenio Bertini, 199 47122 Forlì (FC)

2026 Tecnocasa Franchising S.p.A. - P. IVA 08365160152 - Via Monte Bianco 60/A 20089 Rozzano (MI). Ogni agenzia ha un proprio titolare ed è autonoma. Privacy policy | Policy utilizzo | Cookie policy